Москва, Artplay +7 (495) 287-00-40 МЕНЮ
  • Клиент:Частное лицо
  • Адрес:Московская Область
  • Проектировщик:ААБА - архитектура
  • Авторский коллектив:Ю.Логинов, при участии А.Казаковой
  • Консультант по деревянным конструкциям:Ф.Кочнев
  • Проектирование:2009-2010
  • Строительство:2010
Архитектурный анализ

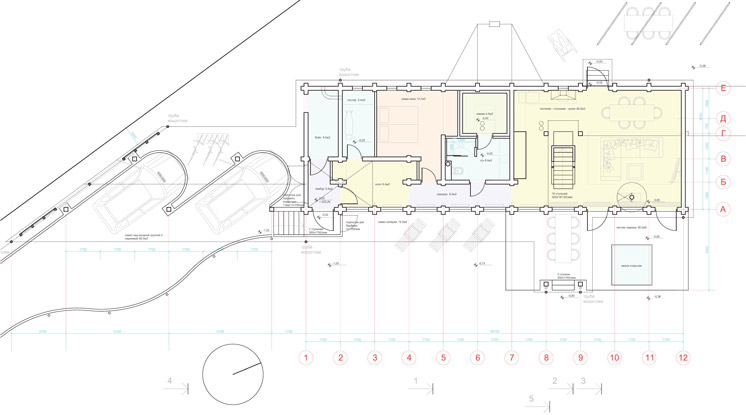
Дуга плотного озеленения на юго-западной границе участка отделяет западную поляну от возможной активности соседской входной группы. В основу планировочной структуры дома легли галереи первого и второго этажей. Так строение получает имя: Дом-Галерея.

Макет

В связи с линейной структурой дома все основные помещения - спальные комнаты и гостиная - получают самый привлекательный вид из возможных. Это многоплановая перспектива через юго-восточную поляну участка на лес и поляну в лесном массиве. Особое внимание уделялось инсталляции главных помещений юго-восточным солнцем. На ЮВ обращен дополнительный навес над частью террасы: здесь располагается летняя обеденная зона и летний бассейн-ванная. Объем междуэтажной лестницы, отделяя кухонную рабочую зону, дополняет, и тем самым увеличивает, двухуровневую гостиную, имеющую непосредственный выход на СЗ и ЮВ поляны.

Строительство

Почему дом так назвали? Ответ дает Толковый словарь: галерея (франц. galerie, от итал. gal-leria), 1) длинное крытое светлое помещение, в котором обычно одну из продольных стен заменяют колонны или столбы, а иногда ещё и балюстрада. С 1-й половины 16 в. и особенно в эпоху барокко в европейской дворцовой архитектуре складывается новый тип Г. — обширного зала со сплошным рядом больших окон в одной из продольных стен. В подобных Г. с 17 в. размещались художественные коллекции владельцев дворцов. Позже Г. стали называть художественные музеи, а также их отделы. В современной архитектуре Г. являются важным функциональным элементом галерейных домов. 2) Верхний ярус зрительного зала (галёрка).

Дом Галерея

Дом и основные вспомогательные элементы благоустройства располагаются по диагонали участка и условно делят его на две засеянные газоном поляны - юго-восточную и северо-западную. Такое расположение проявляет самый большой линейный размер землевладения и зрительно его увеличивает. Расположение дома на участке соответствует требованиям по пожарным разрывам между деревянными малоэтажными строениями. Навес крытой парковки объединен со входной группой.

Мы любим проектировать. Смотрите другие наши проекты.
Bent House
Архитектура
Bent House
Мобильный отель
Архитектура
Мобильный отель / Дом на дереве
Архитектура
Akbulak Club
Архитектура
Tulipan Park. Генплан г.Hostivice, Прага
Дизайн виллы - Москва
Архитектура
Вилла "Lotus"
Дизайн загородного дома - Москва
Архитектура
Сосновый берег - загородный дом
Bent House
Архитектура
Bent House
Апартаменты "Московская панорама"
Интерьер
Апартаменты "Московская панорама"
Профессиональный дизайн салонов красоты
Интерьер
Благовещенский - салон красоты "МОНЕ"
Дизайн салона красоты
Салоны красоты
Комсомольский 41 - салон "МОНЕ"
Интерьер
Танцевальная студия BEST
Дизайн гостиницы
Интерьер
Гостиница Москва (Four Seasons)
Мобильный отель
Архитектура
Мобильный отель / Дом на дереве
Профессиональный дизайн салона красоты от Юрия Логинова
Интерьер
Savanna салон красоты
Архитектура
Akbulak Club
Архитектура
Tulipan Park. Генплан г.Hostivice, Прага
Услуги частного архитектора
Интерьер
Интерьер компании «Деловой Мир Онлайн»
Дизайн виллы - Москва
Архитектура
Вилла "Lotus"
Дизайн загородного дома - Москва
Архитектура
Сосновый берег - загородный дом
Интерьер
Авиамоторная - салон красоты "МОНЕ"
Дизайн переговорной
Интерьер
ВТБ24. Переговорный комплекс
Дизайн коттеджного поселка
Генплан
Микрорайон "Vrsovice", Прага
Дизайн книжного магазина
Интерьер
Сеть книжных магазинов «Букбери»
Дизайн салонов красоты фотогалерея интерьера
Интерьер
Б.Грузинская - салон красоты "МОНЕ"
Дизайн торговых центров
Интерьер
Торговый комплекс "Европарк"
Наша компания aaba
Интерьер
Арт-площадка ARTPLAY
Дизайн салона красоты в стиле хай тек
Интерьер
Садовническая 57 - салон красоты МОНЕ
Интерьер
Prosecco Bar PR11
Интерьер
Персона Салон
Интерьер
Долгоруковская 35 - салон красоты МОНЕ
Дизайн энергоэффективного дома
Архитектура
Октагон - загородный дом с теплицей
Рассчитать
стоимость проекта
Рассчитать