Москва, Artplay +7 (495) 287-00-40 МЕНЮ
  • Клиент:Fetish Film + AABA-architects
  • Адрес:ул. Нижняя Сыромятническая д. 10 стр.7
  • Проектировщик:ААБА - архитектура
  • Архитектор:Логинов Ю. (ГАП)
  • При участии:А.Петлюра (свет Бара - инсталляция), Т.Олейник (визуализация 3D)
  • Проектирование:2011-2012
  • Строительство:2012
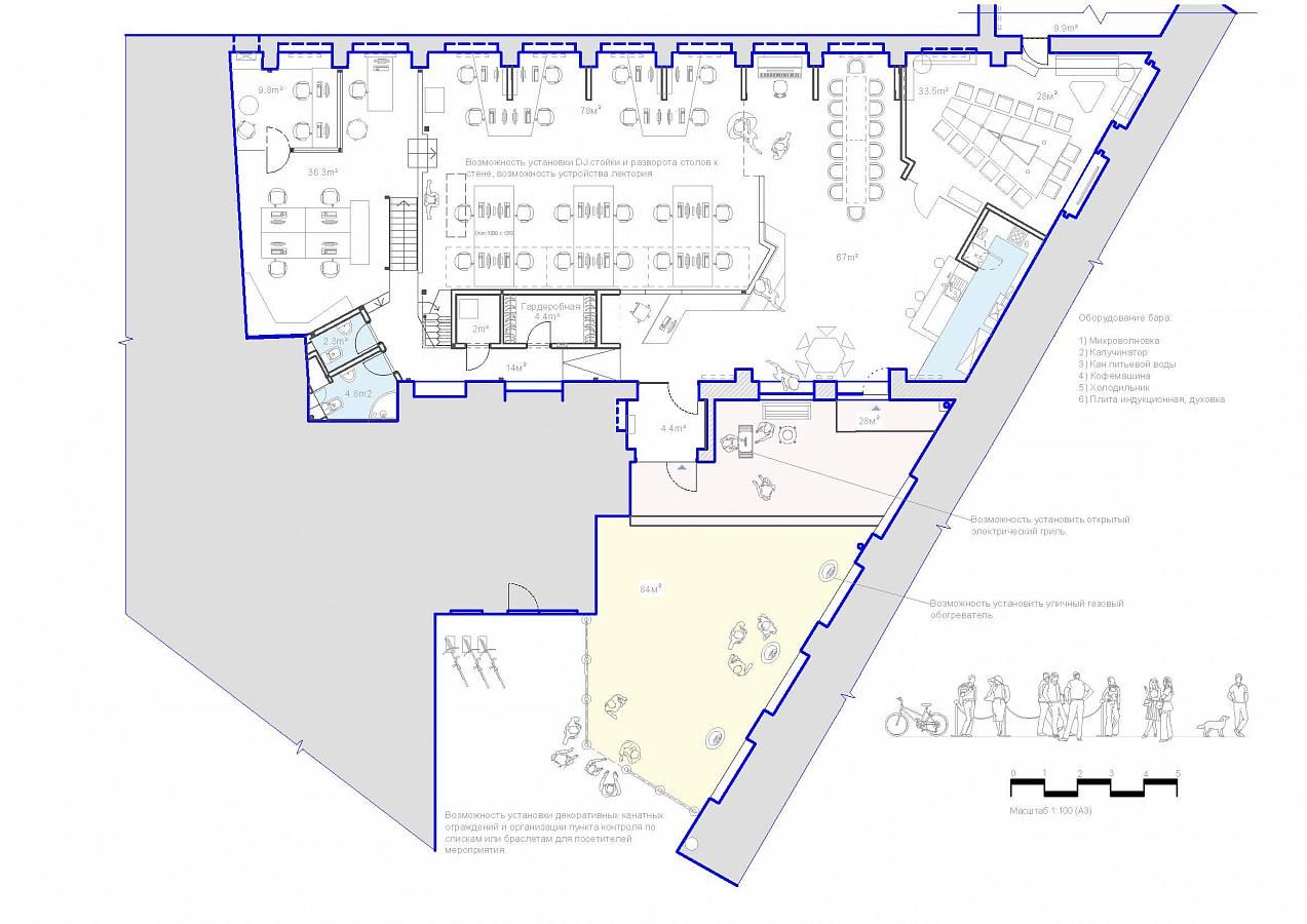
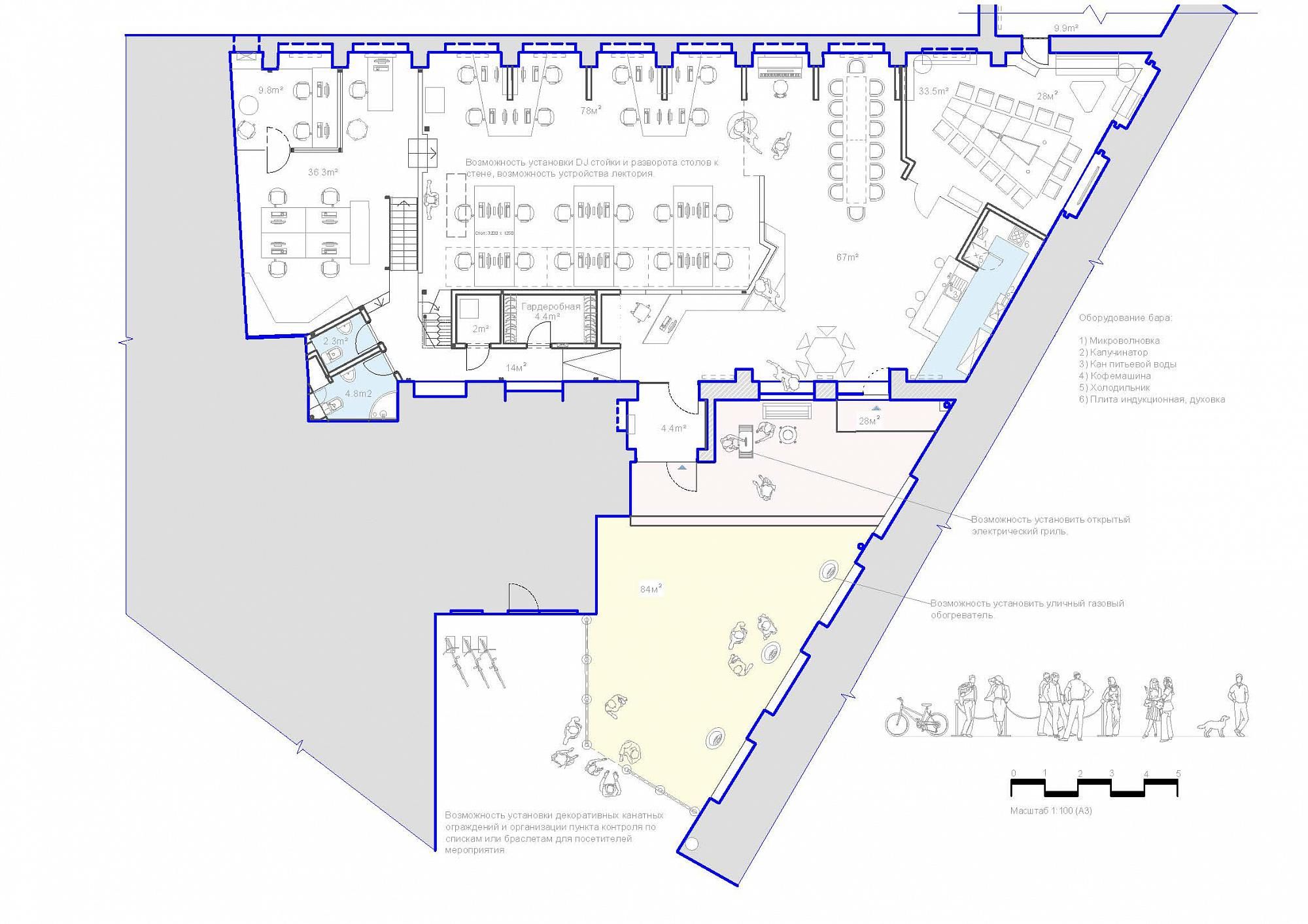
  • Общая площадь объекта:300 м2
  • Площадь территории благоустройства:60 м2
Пространство в стиле Лофт, площадка для проведения шумных мероприятий

Стильная площадка для ваших мероприятий - 300 м2 openspace.
Максимальная вместимость в режиме DJ банкет - 180 человек.
Организация мероприятий "под ключ".
Можно шуметь после 23:00,  использовать хлопушки и конфетти.
Площадь территории благоустройства на улице и террасе - 60 м2.
Есть свой дворик - можно огородить бархатными поручнями + горелки ставить если прохладно (так обычно делаем) и фейсконтроль делать на улице (ЧОП Артплей можно привлекать).
Кухня полноценная - для доготовки (духовка, плита, микроволновка, холодильник, фильтр питьевой воды). Пара санузлов один из которых с душем.

Современная площадка для проведения различных мероприятий

Мастер-классы, детские праздники, тренинги, вечеринки, презентации и прочие.
2 этажа стильного пространства в светлых тонах - деревянная отделка пола и стен напомнит песчаный пляж.
Яркая площадка для дня рождения, тренинга, вечеринки, проведения семинаров, детского праздника.
Светлая площадка для дня рождения, проведения семинаров, тренинга, фотосъемки, кулинарных целей.
Атмосфера творчества, самовыражения и индустриального духа инноваций.

Креативные вечера: рисунок с натуры

На базе пространства в стиле лофт проходят мастер-классы, есть все для работы детская студии, в том числе профессиональные мольберты. Устраиваем креативные вечера под аккомпанемент живой современной классической музыки. Привлекаем профессиональных фото-моделей.

Интерьр

Мастерская располагается в центре дизайна ARTPLAY - полностью реконструированое здание бывшего заводского цеха. Теперь это двухуровневый зеленый офис: огород, терраса, раздельный собор мусора, социальная площадка и бар. 
Это пространство мастер-классов, семинаров, лекций и профессиональных дискуссий. 
Здесь происходят некоммерческие вечера в уникальном формате: Мастеркласс рисунка (обнаженная натура) с музыкальным сопровождением (живой концерт - профессиональная импровизация / "джем") и видео инсталляциями. Большинство гостей не умеют рисовать профессионально - но с удовольствием пробуют. Основные художественные материалы – тушь, кисти, мольберты и планшеты выдаются.

Первый и второй этажи арт - пространства

На планах смотрите вариативную планировку - можно двигать столы как схематично показано на плане первого и второго уровней.
Антресольный этаж (второй уровень) дополняет пространство вертикальной перспективой - это хорошо для фото и видео съемки мероприятий. Это две зоны на которые ведут независимые лестницы.

Мы любим проектировать. Смотрите другие наши проекты.
Апартаменты "Московская панорама"
Интерьер
Апартаменты "Московская панорама"
Профессиональный дизайн салонов красоты
Интерьер
Благовещенский - салон красоты "МОНЕ"
Интерьер
Танцевальная студия BEST
Дизайн гостиницы
Интерьер
Гостиница Москва (Four Seasons)
Профессиональный дизайн салона красоты от Юрия Логинова
Интерьер
Savanna салон красоты
Bent House
Архитектура
Bent House
Апартаменты "Московская панорама"
Интерьер
Апартаменты "Московская панорама"
Профессиональный дизайн салонов красоты
Интерьер
Благовещенский - салон красоты "МОНЕ"
Дизайн салона красоты
Салоны красоты
Комсомольский 41 - салон "МОНЕ"
Интерьер
Танцевальная студия BEST
Дизайн гостиницы
Интерьер
Гостиница Москва (Four Seasons)
Мобильный отель
Архитектура
Мобильный отель / Дом на дереве
Дизайн дома от частного архитектора
Архитектура
Дом Галерея
Профессиональный дизайн салона красоты от Юрия Логинова
Интерьер
Savanna салон красоты
Архитектура
Akbulak Club
Архитектура
Tulipan Park. Генплан г.Hostivice, Прага
Услуги частного архитектора
Интерьер
Интерьер компании «Деловой Мир Онлайн»
Дизайн виллы - Москва
Архитектура
Вилла "Lotus"
Дизайн загородного дома - Москва
Архитектура
Сосновый берег - загородный дом
Интерьер
Авиамоторная - салон красоты "МОНЕ"
Дизайн переговорной
Интерьер
ВТБ24. Переговорный комплекс
Дизайн коттеджного поселка
Генплан
Микрорайон "Vrsovice", Прага
Дизайн книжного магазина
Интерьер
Сеть книжных магазинов «Букбери»
Дизайн салонов красоты фотогалерея интерьера
Интерьер
Б.Грузинская - салон красоты "МОНЕ"
Дизайн торговых центров
Интерьер
Торговый комплекс "Европарк"
Дизайн салона красоты в стиле хай тек
Интерьер
Садовническая 57 - салон красоты МОНЕ
Интерьер
Prosecco Bar PR11
Интерьер
Персона Салон
Интерьер
Долгоруковская 35 - салон красоты МОНЕ
Дизайн энергоэффективного дома
Архитектура
Октагон - загородный дом с теплицей
Рассчитать
стоимость проекта
Рассчитать