Москва, Artplay +7 (495) 287-00-40 МЕНЮ
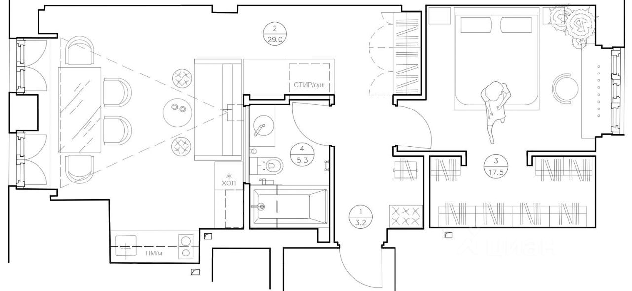
  • Клиент:Частное лицо
  • Адрес:Москва, Басманный район
  • Проектировщик:«AABA ARCHITECTS»
  • Руководитель проекта:Ю.Логинов
  • Общая площадь объекта:75 кв.м
Квартира Красные Ворота

Две квартиры на этаже - дом построен для работников дипломатического корпуса. Потолки 3.10 метра. Новые инженерные системы, моторизированные шторы в спальной, теплые полы, радиаторы Arbonia, газовая колонка Bosсh (независимый современный автомат, нет летних отключений горячий воды), свет ар-деко Берлинер, удобные датчики движения для света, авторская мебель, новые энерго-эффективные окна Schuco. Полы массив дуба, подоконники и столы каррарский мрамор. Гостиная с кухней - диван раскладывается в дополнительную гостевую двуспальную кровать. Большой душ (135х90см) с термостатом  выставляется постоянная температура воды  не надо крутить ручки, мраморный душевой поддон с подогревом, встраиваемый унитаз и гигиенический душ.

Квартира Красные Ворота

Отличительные особенности проекта

Мы были рады вдохнуть новую жизнь в квартиру «Красные ворота». Наша цель была сохранить стиль, индивидуальные черты — и добавить больше комфорта, технологичности и заботы об окружающей среде. Остановимся подробнее на том, что нам удалось реализовать.

  • Энергоэффективные окна. Благодаря специальному покрытию, материалам и конструкции зимой они удерживают тепло в помещении, а летом защищают от перегрева. Это поддерживает более комфортную температуру в квартире.
  • Тёплый пол и газовая колонка. Жильцы отрегулируют температуру пола на свой вкус, чтобы ходить было приятно даже босиком. А за счёт газовой колонки Bosch горячая вода будет даже в период планового отключения.
  • Датчики движения для света, моторизованные шторы и другие элементы «умного дома». Всё это делает повседневную жизнь удобнее без отвлечения на лишние действия. В проектах мы стараемся использовать хотя бы часть таких функций.
  • Первоклассные материалы: качественный мрамор, массив дуба и другие. Мы считаем это отличной инвестицией, так как подобные материалы долговечны и автоматически добавляют интерьеру статусность.
  • Авторская мебель. Это тоже одна из изюминок проекта. Такая мебель идеально подходит под интерьер, сделана с учётом запроса и стиля, придаёт пространству ещё больше эксклюзивности.

В итоге квартира выглядит сдержанно, изысканно, но благодаря деталям и технологичным элементам она становится самобытной и по-настоящему комфортной.

Мы любим проектировать. Смотрите другие наши проекты.
Апартаменты "Московская панорама"
Интерьер
Апартаменты "Московская панорама"
Профессиональный дизайн салонов красоты
Интерьер
Благовещенский - салон красоты "МОНЕ"
Интерьер
Танцевальная студия BEST
Дизайн гостиницы
Интерьер
Гостиница Москва (Four Seasons)
Профессиональный дизайн салона красоты от Юрия Логинова
Интерьер
Savanna салон красоты
Bent House
Архитектура
Bent House
Апартаменты "Московская панорама"
Интерьер
Апартаменты "Московская панорама"
Профессиональный дизайн салонов красоты
Интерьер
Благовещенский - салон красоты "МОНЕ"
Дизайн салона красоты
Салоны красоты
Комсомольский 41 - салон "МОНЕ"
Интерьер
Танцевальная студия BEST
Дизайн гостиницы
Интерьер
Гостиница Москва (Four Seasons)
Мобильный отель
Архитектура
Мобильный отель / Дом на дереве
Дизайн дома от частного архитектора
Архитектура
Дом Галерея
Профессиональный дизайн салона красоты от Юрия Логинова
Интерьер
Savanna салон красоты
Архитектура
Akbulak Club
Архитектура
Tulipan Park. Генплан г.Hostivice, Прага
Услуги частного архитектора
Интерьер
Интерьер компании «Деловой Мир Онлайн»
Дизайн виллы - Москва
Архитектура
Вилла "Lotus"
Дизайн загородного дома - Москва
Архитектура
Сосновый берег - загородный дом
Интерьер
Авиамоторная - салон красоты "МОНЕ"
Дизайн переговорной
Интерьер
ВТБ24. Переговорный комплекс
Дизайн коттеджного поселка
Генплан
Микрорайон "Vrsovice", Прага
Дизайн книжного магазина
Интерьер
Сеть книжных магазинов «Букбери»
Дизайн салонов красоты фотогалерея интерьера
Интерьер
Б.Грузинская - салон красоты "МОНЕ"
Дизайн торговых центров
Интерьер
Торговый комплекс "Европарк"
Наша компания aaba
Интерьер
Арт-площадка ARTPLAY
Дизайн салона красоты в стиле хай тек
Интерьер
Садовническая 57 - салон красоты МОНЕ
Интерьер
Prosecco Bar PR11
Интерьер
Персона Салон
Интерьер
Долгоруковская 35 - салон красоты МОНЕ
Дизайн энергоэффективного дома
Архитектура
Октагон - загородный дом с теплицей
Рассчитать
стоимость проекта
Рассчитать